Muurveld
5467 KE Veghel
Vraagprijs € 445.000 k.k.
Hoekwoning
121 m2 wonen
158 m2 perceel
3 Slaapkamers
RIANTE LEEFRUIMTE!
Op een fijne locatie nabij het centrum De Bunders en het Bunderspark treft u deze ruime, instapklare hoekwoning! Op slechts 10 minuten fietsafstand bevindt u zich midden in het centrum van Veghel, met alle sociale voorzieningen binnen handbereik. De woning is ruim en praktisch ingedeeld, met een grote leefruimte op de begane grond. Daarnaast beschikt de woning over een aanbouw, een halfopen keuken, een complete badkamer, drie slaapkamers en een ruime open zolder. De woning is gebouwd in 1991 en is keurig onderhouden. De achtertuin is onderhoudsvriendelijk aangelegd en voorzien van een fraaie overkapping met elektra, twee lichtkoepels en glazen schuifdeuren.
KENMERKEN:
* Bouwjaar: 1991
* Perceeloppervlakte: 158 m²
* Woonoppervlakte: 121 m²
* Inhoud: ca. 422 m³
* Ruime hoekwoning
* Grote leefruimtes
* Halfopen woonkeuken
* Complete badkamer
* Drie slaapkamers
* Ruime tweede verdieping
* Onderhoudsvriendelijke achtertuin met fraaie overkapping
* 9 zonnepanelen
* Fijne locatie nabij het Bunderspark en met vrij uitzicht voor
* Kindvriendelijke woonomgeving
* Op korte afstand van (alle) sociale voorzieningen
* Aanvaarding in overleg
LIGGING:
Muurveld is een rustige woonstraat in een kindvriendelijke wijk. Tegenover de woning bevindt zich een groenvoorziening met speeltoestellen. Op loopafstand treft u het Bunderspark, winkelcentrum De Bunders en diverse voorzieningen zoals basisscholen, kinderopvang, huisarts, tandarts, winkels, supermarkten, speelplekken en uitvalswegen naar de A50. Het centrum van Veghel met winkels en uitgaansgelegenheden bereikt u binnen 10 fietsminuten.
TUIN EN GARAGE:
De onderhoudsvriendelijke achtertuin is volledig bestraat en omheind met een schutting. Achter in de tuin bevindt zich een fraaie overkapping, voorzien van elektra en twee lichtkoepels. Een heerlijke plek om buiten te genieten maar ook is deze ruimte ideaal als extra chillruimte als u de glazen schuifdeuren dicht schuift! Via de tuin is direct toegang tot de garage en daarmee ook de achterom. De garage beschikt over elektra en biedt voldoende ruimte voor het parkeren van een auto, het stallen van fietsen en het opbergen van (tuin)gereedschap.
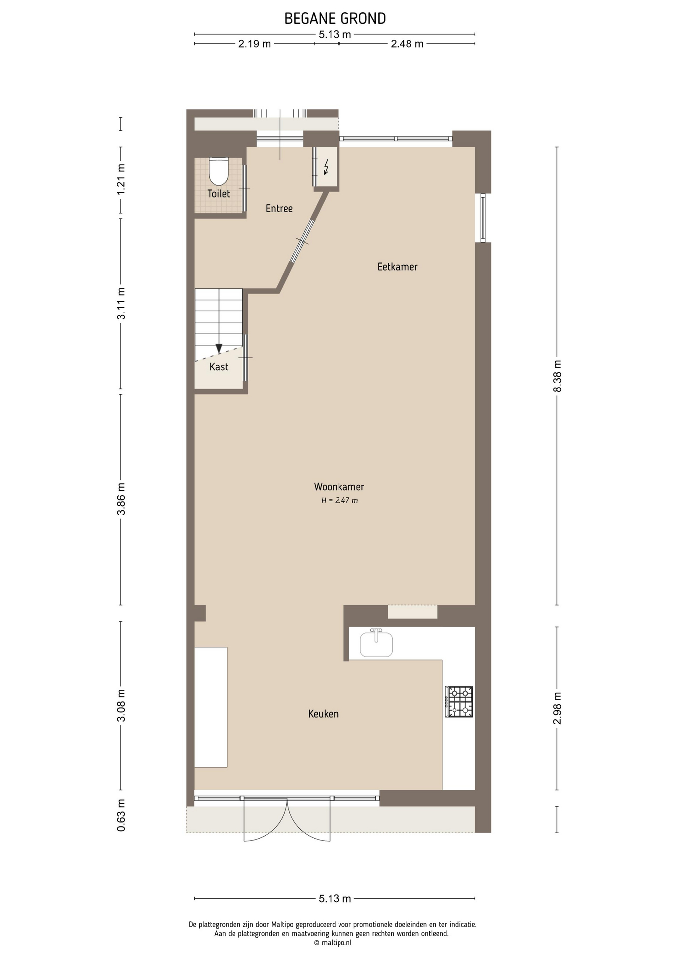
INDELING:
Begane grond: Via de entree/hal met meterkast, de toiletruimte (voorzien van inbouwcloset en mechanische ventilatie) en de trapopgang naar de eerste verdieping, betreedt u de woonkamer. Deze is zeer ruim en keurig afgewerkt met strak stucwerk op wanden en plafond en een mooie houten vloer. U vindt hier een praktische trapkast, handig voor het opbergen van proviand. De halfopen keuken vindt u in de uitbouw aan de achterzijde. Hier is een groot U-vormig keukenmeubel geplaatst, waardoor u beschikt over veel werk- en bergruimte. De keuken is uitgerust met een granieten werkblad, spoelbak, Quooker, koelkast, vriezer, afzuigkap, combi-oven, vaatwasser en een fornuis met 6 pitten en oven. Middels openslaande deuren komt u in de achtertuin.
Eerste verdieping: Via de overloop bereikt u drie slaapkamers en de badkamer. De badkamer is volledig betegeld met grijze vloer- en wandtegels en compleet uitgerust met een wastafelmeubel, ligbad, inbouwcloset en inloopdouche. De hoofdslaapkamer is voorzien van vloerbedekking en rolluiken. De tweede en derde slaapkamer zijn afgewerkt met een vinylvloer.
Tweede verdieping: Via een vaste trap bereikt u de tweede verdieping. De voorzolder biedt plaats aan de cv-installatie (Nefit Excellent), de omvormer voor de 9 zonnepanelen en de aansluitingen voor wasmachine en droger. Aansluitend komt u in een kamer met vaste kasten en veel bergruimte onder de kapschuinte.
Lees meer Lees minderKenmerken
| Adres | Muurveld , 5467 KE, Veghel Nederland | |
| Bouw | ||
| Bouwjaar | 1991 | |
| In aanbouw | Nee | |
| Verdiepingen | ||
| Aantal kamers | 5 | |
| Aantal slaapkamers | 3 | |
| Afmetingen | ||
| Inhoud | 422 m3 | |
| Gebruiksoppervlakte woonfunctie | 121 m2 | |
| Gebouwgebonden buitenruimtes | 3 m2 | |
| Perceeloppervlakte | 158 m2 | |
| Garage | ||
| Garage soorten | Vrijstaand steen | |
| Garage voorzieningen | Elektra | |
| Garage capaciteit | 1 | |
| Totaal aantal garages | 1 | |
| Hoofdtuin | ||
| Hoofdtuin type | Achtertuin | |
| Hoofdtuin positie | Noord | |
| Hoofdtuin achterom | Ja | |
| Hoofdtuin lengte | 700 m | |
| Hoofdtuin breedte | 550 m | |
| Hoofdtuin oppervlakte | 39 m2 | |
| Installaties | ||
| Soorten verwarming | CV ketel | |
| CV Ketel type | Nefit Excellent | |
| CV Ketel bouwjaar | 2008 | |
| CV Ketel brandstof | Gas | |
| CV Ketel eigendom | Eigendom | |
| CV Ketel combiketel | Ja | |
| Soorten warm water | CV ketel | |
| Energie | ||
| Energieklasse | A | |
| Energielabel einddatum | 02-10-2035 | |
| Isolatie | ||
| Isolatievormen | Dakisolatie, Muurisolatie, Dubbelglas | |
| Voorzieningen | ||
| Voorzieningen | Mechanische ventilatie, Rolluiken, Dakraam, Zonnepanelen | |
| Parkeerfaciliteiten | Openbaar parkeren | |
Maak nu een afspraak voor deze woning
Plan nu een bezichtigingKorte lijnen, wij staan klaar
Heb je vragen of wil je meer weten? Neem direct contact met ons op.
Locatie Schijndel
Kloosterstraat 6
5481 BE
073 544 21 00
info@demakelaarvanhier.nl
Locatie Veghel
Hoogstraat 25
5462 CW
0413 35 36 11
info@demakelaarvanhier.nl
Waar kunnen we je mee helpen?
